Lieldienu Sala
Brīvdienu māja “Lieldienu Sala” Kaltenē – arhitektes Zaigas Gailes izlolots projekts un patvērums minimālismā. Māja, kas dzīvo saskaņā ar dabu.
Brīvdienu māja “Lieldienu Sala” Kaltenē – arhitektes Zaigas Gailes izlolots projekts un patvērums minimālismā. Māja, kas dzīvo saskaņā ar dabu.

Kulta arhitektes Zaigas Gailes izlolota dzīves telpa sev un ģimenei izsmalcinātā minimālismā starp jūru un sauszemi.
Skatīties





The Chicago Athenaeum Museum of Architecture and Design
nominācijā "Labākā rekonstrukcija"
nominācijā "Labākais mūsdienu risinājums vēsturiskā vidē"
Latvijas Būvnieku asociācijas konkursā “Gada labākā būve Latvijā 2007”
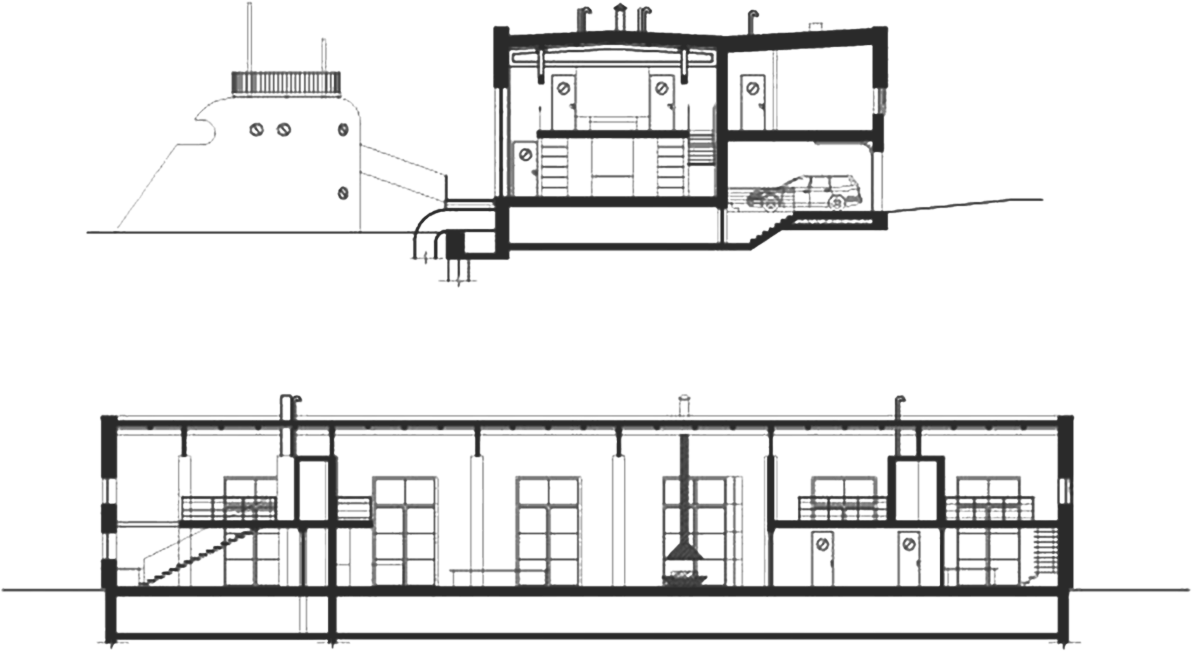
Celtnes plāns ir trīsdaļīgs: centrā atrodas lielā zāle, kurai vienā galā ir saimnieku divstāvu apartaments, bet otrā – četri divstāvu viesu apartamenti.
Garāžā, kuras platība ir 43 m2, iespējams ērti novietot divas automašīnas.
Galvenā dzīvojamā halle 152 m2 platībā ir sadalīta atpūtas zonā ar mājīgu kamīnu, darba zonā ar lielu un ērtu galdu un virtuves zonā.
Galvenā dzīvojamā halle 152 m2 platībā ir sadalīta atpūtas zonā ar mājīgu kamīnu, darba zonā ar lielu un ērtu galdu un virtuves zonā.
Galvenā dzīvojamā halle 152 m2 platībā ir sadalīta atpūtas zonā ar mājīgu kamīnu, darba zonā ar lielu un ērtu galdu un virtuves zonā.
Galvenā dzīvojamā halle 152 m2 platībā ir sadalīta atpūtas zonā ar mājīgu kamīnu, darba zonā ar lielu un ērtu galdu un virtuves zonā.
Saimnieku guļamistabā, kuras platība ir 28 m2, no rītiem iespējams baudīt saullēktu, bet vakaros – brīnišķīgu saulrietu.
Saimnieku guļamistabā, kuras platība ir 28 m2, no rītiem iespējams baudīt saullēktu, bet vakaros – brīnišķīgu saulrietu.
Saimnieku guļamistabā, kuras platība ir 28 m2, no rītiem iespējams baudīt saullēktu, bet vakaros – brīnišķīgu saulrietu.
Saimnieku guļamistabā, kuras platība ir 28 m2, no rītiem iespējams baudīt saullēktu, bet vakaros – brīnišķīgu saulrietu.
Ar dzīvojamo telpu apvienotajā virtuves zonā ierīkota moderna sadzīves tehnika ērtai saimniekošanai.
Ar dzīvojamo telpu apvienotajā virtuves zonā ierīkota moderna sadzīves tehnika ērtai saimniekošanai.
Ar dzīvojamo telpu apvienotajā virtuves zonā ierīkota moderna sadzīves tehnika ērtai saimniekošanai.
Ar dzīvojamo telpu apvienotajā virtuves zonā ierīkota moderna sadzīves tehnika ērtai saimniekošanai.
Šeit iespējams omulīgi baudīt atpūtu izsmalcinātās dizaina mēbelēs pie autentiska bīdāmā kamīna vai televizora.
Šeit iespējams omulīgi baudīt atpūtu izsmalcinātās dizaina mēbelēs pie autentiska bīdāmā kamīna vai televizora.
Šeit iespējams omulīgi baudīt atpūtu izsmalcinātās dizaina mēbelēs pie autentiska bīdāmā kamīna vai televizora.
Šeit iespējams omulīgi baudīt atpūtu izsmalcinātās dizaina mēbelēs pie autentiska bīdāmā kamīna vai televizora.
Šeit iespējams omulīgi baudīt atpūtu izsmalcinātās dizaina mēbelēs pie autentiska bīdāmā kamīna vai televizora.
Šeit iespējams omulīgi baudīt atpūtu izsmalcinātās dizaina mēbelēs pie autentiska bīdāmā kamīna vai televizora.
Mājā ierīkoti četri divstāvīgi viesu apartamenti – divi 27 m2 platībā un divi 32 m2 platībā –, kuros viesi var justies netraucēti, pirmajā stāvā izvietota darbistaba, bet otrajā guļamistaba.
Mājā ierīkoti četri divstāvīgi viesu apartamenti – divi 27 m2 platībā un divi 32 m2 platībā –, kuros viesi var justies netraucēti, pirmajā stāvā izvietota darbistaba, bet otrajā guļamistaba.
Mājā ierīkoti četri divstāvīgi viesu apartamenti – divi 27 m2 platībā un divi 32 m2 platībā –, kuros viesi var justies netraucēti, pirmajā stāvā izvietota darbistaba, bet otrajā guļamistaba.
Mājā ierīkoti četri divstāvīgi viesu apartamenti – divi 27 m2 platībā un divi 32 m2 platībā –, kuros viesi var justies netraucēti, pirmajā stāvā izvietota darbistaba, bet otrajā guļamistaba.
Mājā ierīkoti četri divstāvīgi viesu apartamenti – divi 27 m2 platībā un divi 32 m2 platībā –, kuros viesi var justies netraucēti, pirmajā stāvā izvietota darbistaba, bet otrajā guļamistaba.
Mājā ierīkoti četri divstāvīgi viesu apartamenti – divi 27 m2 platībā un divi 32 m2 platībā –, kuros viesi var justies netraucēti, pirmajā stāvā izvietota darbistaba, bet otrajā guļamistaba.
Divstāvu peldu māja, kuras platība ir 52 m2, līdzinās zemūdenes virsbūvei un piedāvā izcilas pirts baudīšanas iespējas. Ēkas āra lodžijā ar skatu uz jūru izvietota arī ūdens vanna.
Divstāvu peldu māja, kuras platība ir 52 m2, līdzinās zemūdenes virsbūvei un piedāvā izcilas pirts baudīšanas iespējas. Ēkas āra lodžijā ar skatu uz jūru izvietota arī ūdens vanna.
Divstāvu peldu māja, kuras platība ir 52 m2, līdzinās zemūdenes virsbūvei un piedāvā izcilas pirts baudīšanas iespējas. Ēkas āra lodžijā ar skatu uz jūru izvietota arī ūdens vanna.
Divstāvu peldu māja, kuras platība ir 52 m2, līdzinās zemūdenes virsbūvei un piedāvā izcilas pirts baudīšanas iespējas. Ēkas āra lodžijā ar skatu uz jūru izvietota arī ūdens vanna.
Dzīvojamā telpa ar atsevišķu ieeju, kas paredzēta ēkas pārvaldniekam vai citam personālam.
Mājā izvietota garāža divām automašīnām, dzīvojamā telpa pārvaldniekam virs garāžas, piecas guļamistabas (viena saimnieku un četras viesu), piecas darbistabas (viena saimnieku un četras viesu) un dzīvojamā halle ar virtuves un atpūtas zonām.
Projekts: 2006 – Zivsaimniecības sūkņu stacijas rekonstrukcija
Būvniecība: 2007–2010
Būvfirma: SIA “PS Serviss”
Zemes gabala platība: 10 067 m²
Brīvdienu mājas platība: 514.2 m²
Peldu mājas platība: 52.45 m²
Talsu rajons, Rojas pagasts, Kaltenes ciems
Arhitekti: Zaiga Gaile, Agnese Sirmā
Pasūtītājs: Māris Gailis
Kaltene ir ciems Rojas novadā pie jūras, Rīgas jūras līča rietumu krastā, – prom no pilsētas steigas un trokšņiem. Attālums līdz Rīgai – 119 km, līdz tuvākajai pilsētai Rojai – 7 km. Kaltenes pludmale ir unikāla vieta, kur iespējams baudīt netraucētu atpūtu patīkamā nošķirtībā visos gadalaikos. Ziemā Kaltenes pludmale ir īpaši klusa – atpūtnieki šeit ir reti sastopami, bet vasarā tā ir īsta atpūtas oāze. Svaigais jūras gaiss un skats uz plašo horizontu radīs brīvības sajūtu, ko nav iespējams piedzīvot lielpilsētā.
Ja Jūs ir ieinteresējis šis īpašums un vēlaties to apskatīt vai noskaidrot sīkāku informāciju par tā iegādi, lūdzam sazināties ar mūsu nekustamo īpašumu aģentu!
LANĪDA nekustamā īpašuma aģenta sertifikāts: A-142
Centrālais birojs, K. Valdemāra 8, Rīga
Mob. +371 26553039